







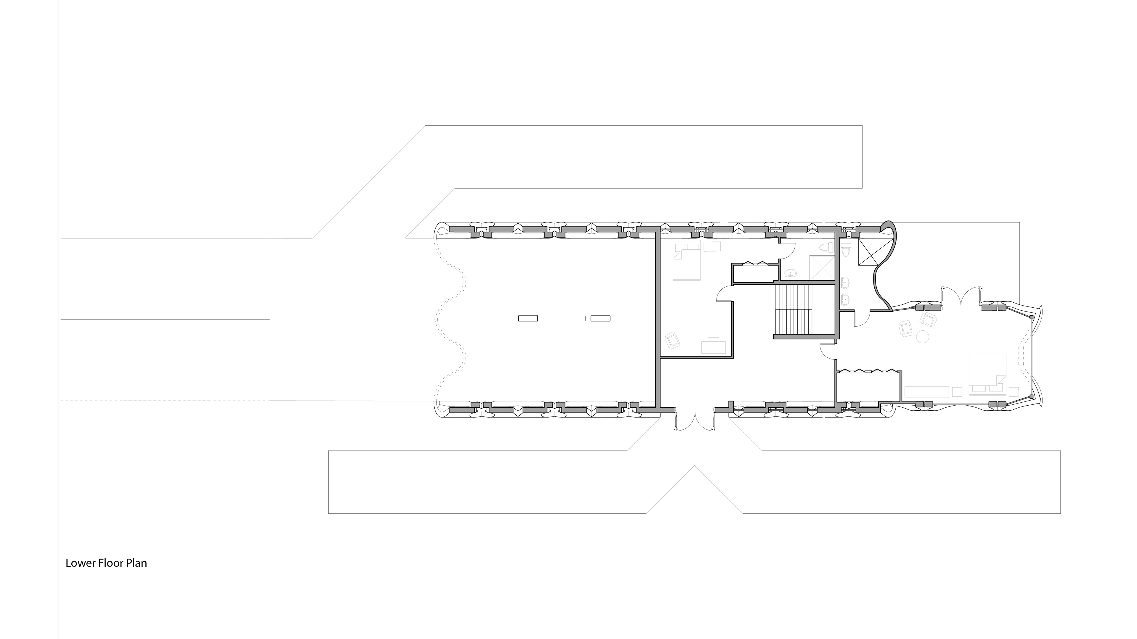
The concept of the Mussel House revolves around 4 core ideologies: ecology, co-living, materiality, and massing. Pittsburgh water quality ranks amongst the worst in the country, and can potentially be harmful to certain individuals. Additionally, with the way the Pittsburgh sewer was built, during heavy storms, the water levels in the Monongahela river rise from 13 feet to 26 feet for up to 3 days after heavy precipitation. The bottom of the Mussel House represents something similar to a pontoon boat. While the actual house does not have the motion of a boat, it will rise along the water level when precipitation is a factor. This house is meant for supporting human and mussel interaction, while providing social and economic potential to Hazelwood. Over time, multiple of these Mussel Houses can be aligned along the river to create a new river community and culture for locals. The site is located along the Monongahela River alongside Hazelwood Green, Hazelwood’s first public outdoor social space located in the Southern area of Pittsburgh. While keeping up with the idea of sustainability, the use of building material and massing plays a huge role. This house uses a lightweight concrete material, which is appropriate for keeping the house afloat. The overall design of the house is inspired by a folded plate structure that is iterated to form a shell. After performing a series of structural optimization calculations, the results indicated the perfect locations for window apertures in the shell. Additionally, through the use of material imagery, a rough texture is applied on the shell, as mussels prefer to grow on rough surfaces.